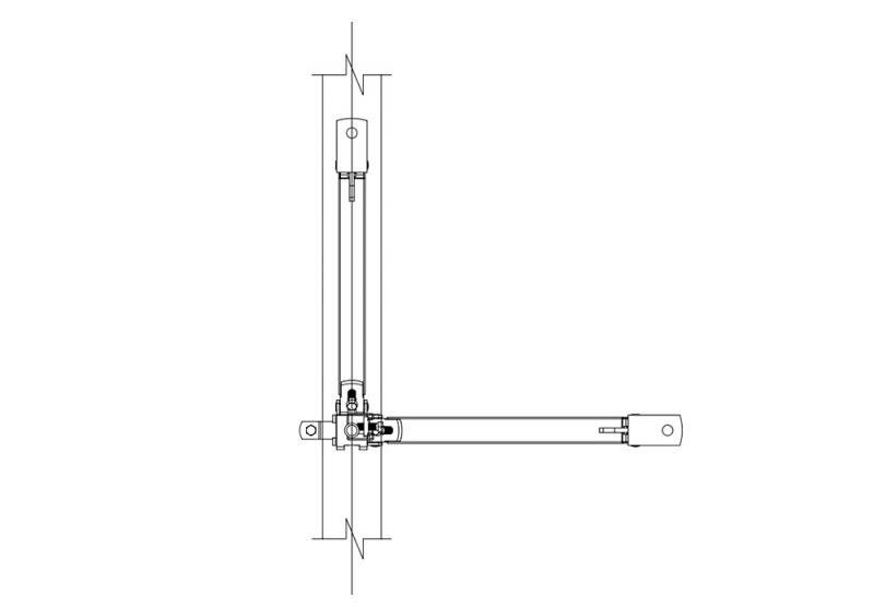
单管纵向抗震支架639ccd全民乐与建筑结构体牢固连接,以地震力为主要荷载的抗震支架设施。由锚固体、加固吊杆、抗震连接构件及抗震斜撑组成。

639ccd全民乐通过对机电管线及设备的地震力进行计算,并对管线及设备与机构体的连接进行抗震加固并对其进行抗震验算,使机电管线及设备与建筑结构体建立可靠连接,可将机电管线及设备承受的地震作用全部传递到结构体上,使其遭遇到设防烈度的地震影响后能迅速恢复运转,进而达到尽快恢复建筑物使用功能的目的。

1、组合式构件、装配式施工,整齐、美观、大方;
2、各专业协调好,可控制室内空间标高;
3、受力可靠、稳定;
4、跟踪式服务,在施工现场进行实时指导、解惑;
639ccd全民乐5、安装速度快,施工工期短,无需现场焊接;
6、使用寿命长,后期维护方便;
7、材料预算准;
8、良好的通用性;
9、环保。

639ccd全民乐1、管道和电线套管允许纵向偏移,但不得超过最大侧向支撑间距的1/16;风管允许偏移,但不得超过风管宽度的2倍。
2、水平管道在90°转弯时,需设抗震支吊架;其他角度转弯长度大于抗震设计间距的1/16时,需设侧向及纵向抗震支吊架。
3、计算水平地震力荷载时,只需考虑满负荷重量而不需要考虑其他因素。
4、抗震吊架不应限制管线热胀冷缩产生的应力,当把热胀冷缩因素考虑在内时,纵向吊架应在构件选型上考虑所选型号应能抵抗管线的热胀冷缩应力。
5、保温管线的抗震吊架管码需按保温后的尺寸考虑,门形吊架用于保温风管,水管亦按此考虑。
6、用于刚性的管道抗震支架639ccd全民乐不能安装于建筑的不同结构部位或功能部位,否则会因地震作用而产生不同的位移。
7、单管抗震支架双向侧向或纵向或具有侧/纵向作用的拐点抗震支架,应直接与管线或电线套管连接。应注意支管或小一级管线的支撑不能作为主管的抗震支架639ccd全民乐,即不能作为另一方向(主管)的支撑。
8、管线穿越建筑沉降缝时,应考虑沉降位移的设计。
639ccd全民乐9、侧/纵向斜撑安装的最佳垂直角度为45°,可根据现场实际情况适当调整。
639ccd全民乐10、对水、电、风系统的单管或多管共用门型吊架,无论侧向或纵向斜撑,斜撑偏离中心线2.5°时不会影响其承载力
